
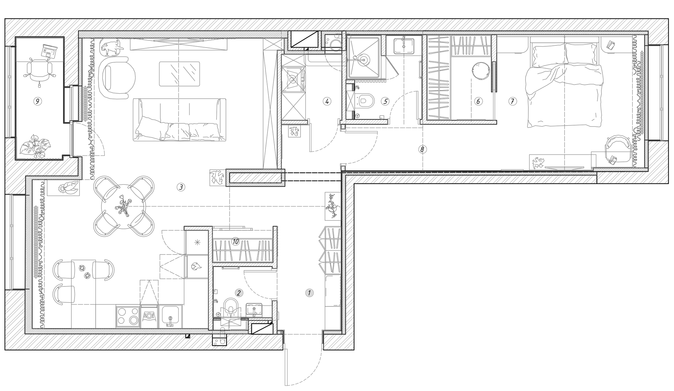
Планировочное решение
50 000 руб. (площадь до 65 м²)
60 000 руб. (от 65 м² до 120 м²)
- Метраж более 120 м² и планировочные решения домов обсуждаются индивидуально.
- Срок исполнения 3-4 недели
Планировочное решение — «фундамент» будущего интерьера, в нем закладываются принципиальные решения о зонировании пространства и взаимосвязях внутри него.
Включает в себя:
- Обмерный план помещения
- Итоговое планировочное решение с расстановкой мебели и ее габаритами, уточняющими выносками и пояснениями
- План демонтажа
- План монтажа с необходимыми размерами и основными привязками сантехники

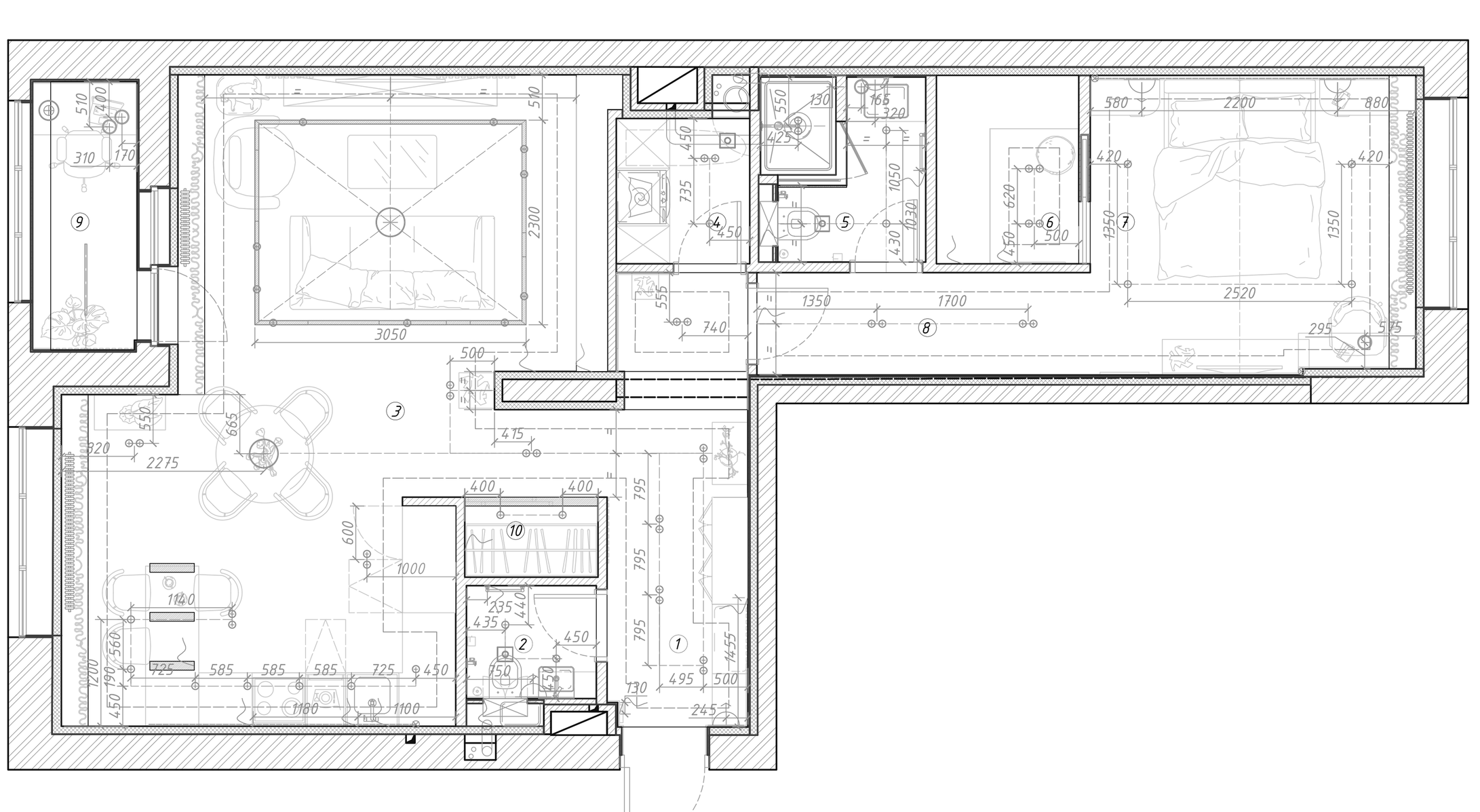
Технический проект
145 000 руб. (площадь до 80 м²)
- Больший метраж обсуждается индивидуально.
- Срок исполнения 1-2 месяца
Технический проект — выбор тех, кто чувствует в себе силы собрать интерьер самостоятельно, но прежде хочет получить четкую и грамотную схему расстановки мебели, осветительных приборов, розеток и выключателей.
(Подбор отделочных материалов и мебели в данную услугу не входит.)
Включает в себя:
- Обмерный план помещения
- Итоговое планировочное решение с расстановкой мебели и ее габаритами, уточняющими выносками и пояснениями
- План демонтажа
- План монтажа с необходимыми размерами и основными привязками сантехники
- План размещения сантехнических приборов
- План размещения осветительных приборов
- План размещения розеток и выключателей
- План групп освещения с привязкой к выключателям

Технический проект + Скетчи
175 000 руб. (площадь до 80 м²)
- Больший метраж обсуждается индивидуально.
- Срок исполнения 2 месяца
Авторские скетчи в дополнение к Техническому проекту дадут вам четкое понимание дизайнерских идей, акцентов, стилистических и цветовых решений в интерьере, и помогут не потеряться среди многообразия форм и отделок, представленных на рынке.
Скетчи уникальны и создаются непосредственно для вашего интерьера.
Включает в себя:
- Обмерный план помещения
- Итоговое планировочное решение с расстановкой мебели и ее габаритами, уточняющими выносками и пояснениями
- План демонтажа
- План монтажа с необходимыми размерами и основными привязками сантехники
- План размещения сантехнических приборов
- План размещения осветительных приборов
- План размещения розеток и выключателей
- План групп освещения с привязкой к выключателям
Скетчи цветными маркерами в формате А4 по 1-2 для каждого помещения (кроме технических).

Дизайн проект + 3D
350 000 руб. (площадь до 50 м²)
7 000 руб/ м² (площадь свыше 50 м²)
- Метраж свыше 120 м² и проекты домов обсуждаются индивидуально.
- Срок исполнения от 3-х месяцев
Классический проект с реалистичными 3D визуализациями будущего пространства, пакетом чертежей для строителей и ведомостью.

Дизайн проект + Коллажи
275 000 руб. (площадь до 50 м²)
5 500 руб/ м² (площадь свыше 50 м²)
- Метраж свыше 120 м² и проекты домов обсуждаются индивидуально.
- Срок исполнения 2-3 месяца
Альтернатива
полному Дизайн-проекту — позволяет разработать проект быстрее и разумно сэкономить.
Коллажи обладают хорошей
информативностью и помогают не привязываться в своих ожиданиях к идеальной картинке 3D-визуализаций.

Декорирование
От 60 000 руб. за помещение
- Большой метраж обсуждается индивидуально.
- Срок исполнения от 3-х недель
Если вы хотите оживить интерьер — обновить мебель и текстиль, у пространства появились новые задачи или, просто, хочется перемен без значительных вложений и переделок — Вы можете прибегнуть к услуге декорирования.
Включает в себя:
- План расстановки мебели
- При необходимости — эскизы, развертки, чертежи мебели индивидуального дизайна
- Ведомость мебели, осветительных приборов и декора
Визуализации — коллажи 2D

Авторское сопровождение и Комплектация
От 50 000 руб. в месяц (Москва и МО)
От 65 000 руб. в месяц (Санкт-Петербург) + оплата дороги Москва-СПб-Москва
- Большой метраж обсуждается индивидуально.
- По договоренности возможно удаленное ведение авторского сопровождения реализации проекта.
Включает в себя:
- Авторское сопровождение
- Комплектация (10% от фактического бюджета закупок)
Обратите внимание:
Внесение изменений в утвержденные эскизы
интерьера не входит в услугу и в случае надобности — оплачивается отдельно.

